Description
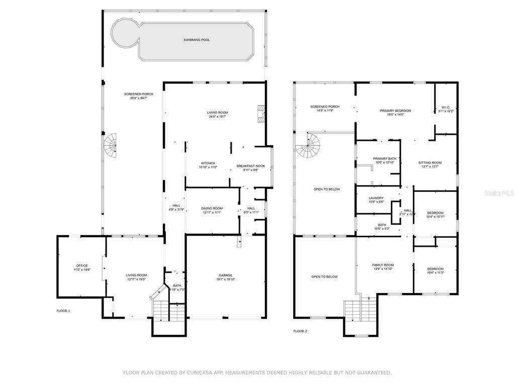
A True Waterfront Gem in South Gulf Cove Discover the perfect blend of luxury, comfort, and coastal charm in this meticulously maintained Spanish/Mediterranean-style home located in the sought-after Englewood/Port Charlotte area. Featuring a 2023 METAL roof, yes it's metal that looks like tile. A sparkling pool, and tropical landscaping across the main property and extra lots available on separate contract, this residence truly stands out. Step through the grand double-door entry into a space of elegance and sophistication, highlighted by 22-foot soaring ceilings and an impressive staircase. The open-concept design showcases a custom galley-style kitchen complete with solid wood cabinetry, granite countertops, a pantry, and a cozy breakfast nook that flows seamlessly into the family roomenhanced by a built-in media center and surround sound. Perfect for entertaining, the home also features formal living and dining rooms, while the spacious primary suite offers a tranquil reading nook, luxurious en suite bathroom with dual sinks, a jacuzzi tub, and private access to a screened balcony overlooking the serene canal. Additional highlights include Corian countertops in all bathrooms, a linen closet in the primary bath, and thoughtfully placed lighting throughout that adds warmth and elegance. Enjoy an unbeatable location just minutes from Boca Grande's world-class Tarpon fishing, pristine beaches, golf courses, and the spring training facilities of the Tampa Bay Rays and Atlanta Braves. Close to Englewood Beach, vibrant shops, local restaurants, and farmer's markets, this home offers more than just a place to liveit delivers the quintessential Florida coastal lifestyle. Whether you're lounging by the pool or cruising the waterways, this exceptional property is your gateway to paradise. Schedule your private tour today and make this coastal dream your reality!
-
3BEDS
-
0.23ACRES
-
2BATHS
-
11/2 BATHS
-
2,707SQFT
-
$295$/SQFT
School Ratings & Info
Description
A True Waterfront Gem in South Gulf Cove Discover the perfect blend of luxury, comfort, and coastal charm in this meticulously maintained Spanish/Mediterranean-style home located in the sought-after Englewood/Port Charlotte area. Featuring a 2023 METAL roof, yes it's metal that looks like tile. A sparkling pool, and tropical landscaping across the main property and extra lots available on separate contract, this residence truly stands out. Step through the grand double-door entry into a space of elegance and sophistication, highlighted by 22-foot soaring ceilings and an impressive staircase. The open-concept design showcases a custom galley-style kitchen complete with solid wood cabinetry, granite countertops, a pantry, and a cozy breakfast nook that flows seamlessly into the family roomenhanced by a built-in media center and surround sound. Perfect for entertaining, the home also features formal living and dining rooms, while the spacious primary suite offers a tranquil reading nook, luxurious en suite bathroom with dual sinks, a jacuzzi tub, and private access to a screened balcony overlooking the serene canal. Additional highlights include Corian countertops in all bathrooms, a linen closet in the primary bath, and thoughtfully placed lighting throughout that adds warmth and elegance. Enjoy an unbeatable location just minutes from Boca Grande's world-class Tarpon fishing, pristine beaches, golf courses, and the spring training facilities of the Tampa Bay Rays and Atlanta Braves. Close to Englewood Beach, vibrant shops, local restaurants, and farmer's markets, this home offers more than just a place to liveit delivers the quintessential Florida coastal lifestyle. Whether you're lounging by the pool or cruising the waterways, this exceptional property is your gateway to paradise. Schedule your private tour today and make this coastal dream your reality!
Related Properties
© 2025 My Florida Regional MLS DBA Stellar MLS. All rights reserved. All listings displayed pursuant to IDX. All listing information is deemed reliable but not guaranteed and should be independently verified through personal inspection by appropriate professionals. Listings displayed on this website may be subject to prior sale or removal from sale; availability of any listing should always be independently verified. Listing information is provided for consumers personal, non-commercial use, solely to identify potential properties for potential purchase; all other use is strictly prohibited and may violate relevant federal and state law. Data last updated 2025-11-08T06:49:22.783.
