Description
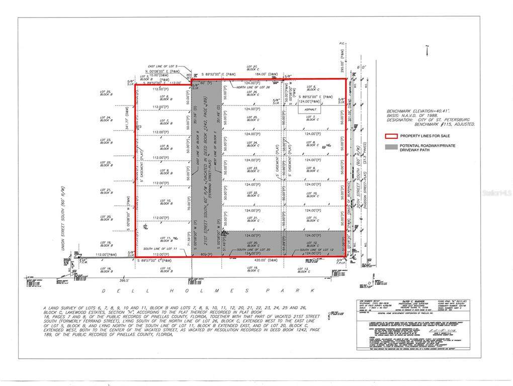
ENTIRE City block that will have up to 26 brand new contiguous homes as a community!! 6 of those homes/lots are already under construction on the far West side and not for sale. The balance of the property that is for sale is the already platted 20 lots and zoned for single family homes (Blk C, Lot 6 is included). Rare opportunity to have this size of a cluster in the City for all new construction. Interior road/driveway, water and sewer lines need to be added for services and access to the middle lots.
-
0BEDS
-
3.3ACRES
-
0BATHS
-
01/2 BATHS
School Ratings & Info
Description
ENTIRE City block that will have up to 26 brand new contiguous homes as a community!! 6 of those homes/lots are already under construction on the far West side and not for sale. The balance of the property that is for sale is the already platted 20 lots and zoned for single family homes (Blk C, Lot 6 is included). Rare opportunity to have this size of a cluster in the City for all new construction. Interior road/driveway, water and sewer lines need to be added for services and access to the middle lots.
© 2026 My Florida Regional MLS DBA Stellar MLS. All rights reserved. All listings displayed pursuant to IDX. All listing information is deemed reliable but not guaranteed and should be independently verified through personal inspection by appropriate professionals. Listings displayed on this website may be subject to prior sale or removal from sale; availability of any listing should always be independently verified. Listing information is provided for consumers personal, non-commercial use, solely to identify potential properties for potential purchase; all other use is strictly prohibited and may violate relevant federal and state law. Data last updated 2026-02-09T18:44:02.38.
