Description
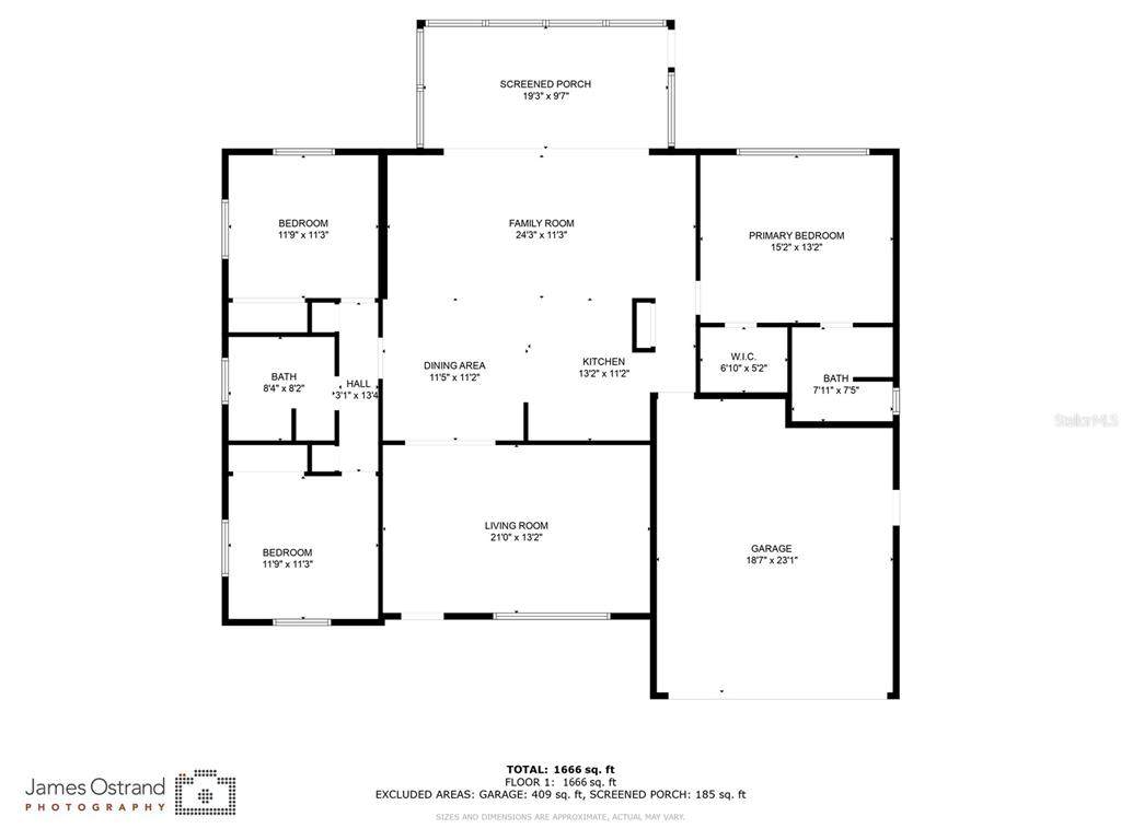
PRICE IMPROVEMENT!!! Build your dream home here or make this beautiful St Pete Beach home custom to your taste. This three-bedroom, two-bathroom block home with a two-car garage, located on East Vina Del Mar Boulevard in St. Pete Beach, offers a unique opportunity for customization. The property sustained damage from Hurricane Helene, leading to professional remediation that included removing affected drywall, thoroughly drying the structure, and restoring the walls with new paint. Recent updates feature two new bathroom vanities and a brand-new water heater. The Florida room is enhanced with Hunter Douglas remote-controlled shades, providing convenient light and privacy control. Situated on a 7,653-square-foot lot with 1,666 heated square feet of living space, this home is nestled on Vina Del Mar Islanda serene enclave surrounded by the waters of Tampa Bay. Its prime location near Vina Del Mar Park offers amenities such as lighted tennis courts, a dog park, a picnic pavilion, and a playground. The property also boasts a spacious Florida room, a pool, and a sizable backyard enclosed by white vinyl fencing. Residents enjoy proximity to the historic Don CeSar hotel, renowned for its distinctive pink faade and luxurious amenities, as well as Pass-A-Grille Beach, known for its breathtaking sunsets and pristine sands. This idyllic setting embodies the quintessential Florida lifestyle, offering unparalleled access to waterfront activities and coastal beauty. Call today to schedule your private tour and explore the potential of this remarkable property.
-
3BEDS
-
0.18ACRES
-
2BATHS
-
01/2 BATHS
-
1,666SQFT
-
$480$/SQFT
School Ratings & Info
Description
PRICE IMPROVEMENT!!! Build your dream home here or make this beautiful St Pete Beach home custom to your taste. This three-bedroom, two-bathroom block home with a two-car garage, located on East Vina Del Mar Boulevard in St. Pete Beach, offers a unique opportunity for customization. The property sustained damage from Hurricane Helene, leading to professional remediation that included removing affected drywall, thoroughly drying the structure, and restoring the walls with new paint. Recent updates feature two new bathroom vanities and a brand-new water heater. The Florida room is enhanced with Hunter Douglas remote-controlled shades, providing convenient light and privacy control. Situated on a 7,653-square-foot lot with 1,666 heated square feet of living space, this home is nestled on Vina Del Mar Islanda serene enclave surrounded by the waters of Tampa Bay. Its prime location near Vina Del Mar Park offers amenities such as lighted tennis courts, a dog park, a picnic pavilion, and a playground. The property also boasts a spacious Florida room, a pool, and a sizable backyard enclosed by white vinyl fencing. Residents enjoy proximity to the historic Don CeSar hotel, renowned for its distinctive pink faade and luxurious amenities, as well as Pass-A-Grille Beach, known for its breathtaking sunsets and pristine sands. This idyllic setting embodies the quintessential Florida lifestyle, offering unparalleled access to waterfront activities and coastal beauty. Call today to schedule your private tour and explore the potential of this remarkable property.
Related Properties
© 2025 My Florida Regional MLS DBA Stellar MLS. All rights reserved. All listings displayed pursuant to IDX. All listing information is deemed reliable but not guaranteed and should be independently verified through personal inspection by appropriate professionals. Listings displayed on this website may be subject to prior sale or removal from sale; availability of any listing should always be independently verified. Listing information is provided for consumers personal, non-commercial use, solely to identify potential properties for potential purchase; all other use is strictly prohibited and may violate relevant federal and state law. Data last updated 2025-11-09T23:42:11.967.
