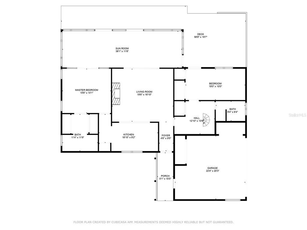
Description
Charming Lakefront Retreat on Lake Weir on Bird Island. Discover this delightful 2-bedroom, 2-bathroom with bonus room lakefront home nestled directly on the serene shores of Lake Weir in Summerfield, Florida. With 101 feet of private waterfront in your backyard, this property offers an unparalleled opportunity to embrace lakeside living. Outdoor Features: Instant curb appeal from the mature landscaping in the front yard and entry. Private Dock & Boathouse: While the boathouse requires some TLC, it holds great potential as a space for boat storage and entertaining guests. Expansive Waterfront: The generous shoreline provides ample space to create a personal beach, enjoy fishing, or simply revel in the natural beauty. Magnolia Tree: A majestic magnolia tree graces the backyard, offering shade and enhancing the property's charm. Spacious Deck: A 352 sq ft wooden deck extends from the Florida room, presenting direct and breathtaking views of the lake. Metal roof: Years of longevity. Interior Highlights: Primary Suite: Wake up to stunning lake views in the primary suite, which includes an en-suite bathroom equipped with dual cedar-lined closets, an oversized medicine cabinet, dual sink vanity, and a walk-in shower. Guest Accommodations: The guest bedroom also offers picturesque lake views, ensuring a serene experience for visitors. Bathrooms: The guest bathroom features a beautiful mosaic tile pattern on the wall, adding a touch of artistry, and a walk in shower. Living Spaces: The open living room and Florida room boast large windows and two sets of sliding glass doors, providing uninterrupted vistas of the lake. Kitchen: The kitchen is a chef's delight, featuring granite countertops, stainless steel appliances, under-cabinet lighting, a chef's pot rack, track lighting, and a central island with bar seating. Flooring & Ceilings: Mexican Saltillo tile flooring adorns much of the first floor, including the entry, kitchen, living room, and Florida room. Unique woodwork ceilings add character and warmth to the space. Additional Amenities: Second Story Bonus Room: Accessible via a circular metal staircase, the second floor is complete with windows and a balcony overlooking the lake, all under charming tongue-and-groove ceilings. Detached Carport & Garage: A 41 x 20 detached carport complements the attached two-car garage, providing ample parking and storage. Dog Run: A chain-link fenced area on the side of the house is perfect for pets. Generator: A Predator 6500 generator is included. Recent Updates: Drain Field: Newly replaced in 2025. Well & Pump: Replaced in 2001. Experience the most beautiful sunrises over Lake Weir from this charming home, offering the best views of the lake on Bird Island. Whether you're an avid boater, fisherman, or simply seeking a peaceful lakeside retreat, this property presents an exceptional opportunity to own a slice of Florida's waterfront paradise.
-
2BEDS
-
0.4ACRES
-
2BATHS
-
01/2 BATHS
-
2,669SQFT
-
$230$/SQFT
School Ratings & Info
Description
Charming Lakefront Retreat on Lake Weir on Bird Island. Discover this delightful 2-bedroom, 2-bathroom with bonus room lakefront home nestled directly on the serene shores of Lake Weir in Summerfield, Florida. With 101 feet of private waterfront in your backyard, this property offers an unparalleled opportunity to embrace lakeside living. Outdoor Features: Instant curb appeal from the mature landscaping in the front yard and entry. Private Dock & Boathouse: While the boathouse requires some TLC, it holds great potential as a space for boat storage and entertaining guests. Expansive Waterfront: The generous shoreline provides ample space to create a personal beach, enjoy fishing, or simply revel in the natural beauty. Magnolia Tree: A majestic magnolia tree graces the backyard, offering shade and enhancing the property's charm. Spacious Deck: A 352 sq ft wooden deck extends from the Florida room, presenting direct and breathtaking views of the lake. Metal roof: Years of longevity. Interior Highlights: Primary Suite: Wake up to stunning lake views in the primary suite, which includes an en-suite bathroom equipped with dual cedar-lined closets, an oversized medicine cabinet, dual sink vanity, and a walk-in shower. Guest Accommodations: The guest bedroom also offers picturesque lake views, ensuring a serene experience for visitors. Bathrooms: The guest bathroom features a beautiful mosaic tile pattern on the wall, adding a touch of artistry, and a walk in shower. Living Spaces: The open living room and Florida room boast large windows and two sets of sliding glass doors, providing uninterrupted vistas of the lake. Kitchen: The kitchen is a chef's delight, featuring granite countertops, stainless steel appliances, under-cabinet lighting, a chef's pot rack, track lighting, and a central island with bar seating. Flooring & Ceilings: Mexican Saltillo tile flooring adorns much of the first floor, including the entry, kitchen, living room, and Florida room. Unique woodwork ceilings add character and warmth to the space. Additional Amenities: Second Story Bonus Room: Accessible via a circular metal staircase, the second floor is complete with windows and a balcony overlooking the lake, all under charming tongue-and-groove ceilings. Detached Carport & Garage: A 41 x 20 detached carport complements the attached two-car garage, providing ample parking and storage. Dog Run: A chain-link fenced area on the side of the house is perfect for pets. Generator: A Predator 6500 generator is included. Recent Updates: Drain Field: Newly replaced in 2025. Well & Pump: Replaced in 2001. Experience the most beautiful sunrises over Lake Weir from this charming home, offering the best views of the lake on Bird Island. Whether you're an avid boater, fisherman, or simply seeking a peaceful lakeside retreat, this property presents an exceptional opportunity to own a slice of Florida's waterfront paradise.
Related Properties
© 2025 My Florida Regional MLS DBA Stellar MLS. All rights reserved. All listings displayed pursuant to IDX. All listing information is deemed reliable but not guaranteed and should be independently verified through personal inspection by appropriate professionals. Listings displayed on this website may be subject to prior sale or removal from sale; availability of any listing should always be independently verified. Listing information is provided for consumers personal, non-commercial use, solely to identify potential properties for potential purchase; all other use is strictly prohibited and may violate relevant federal and state law. Data last updated 2025-11-11T07:49:22.683.
